0510-81881088 0510-88268950
产品中心
    联系方式/contact us

    电 话:0510-81881088 / 88268950

    传 真:0510-88263268 / 88265458

    邮 箱:huat21@163.com

                ht21@ht-dl.com

    网 址:www.wx-ht.com

    地 址:无锡市锡山区羊尖镇工业园A区(胶阳路120号)

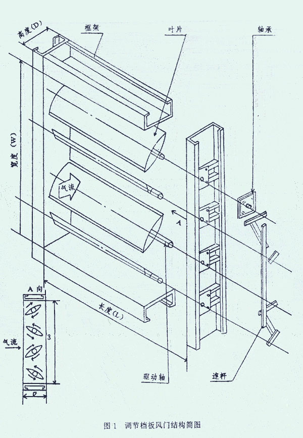
调节挡板风门


       调节挡板风门用于烟风管路中作调节流量之用,当挡板在90°行程内开度变更时,通过管路中的工质流量也相应变更。风门调节特性优良,转动灵活。
       用户在选用挡板风门时应注意以下几项:
       1、调节挡板风门规格中的宽(W)和长(L)是指风门框架的内边尺寸,宽度是挡板轴垂直方向的尺寸,调节挡板风门高度(D)与叶片宽度有关,本系列的尺寸均采用450mm。
       2、根据与调节挡板风门相接管道的内边尺寸选择风门,尽可能使两截面尺寸保持一致。
       3、风门在管路布置中应保持挡板轴处在水平位置。
       4、本系列调节挡板不能截断管路工质的流动,故需与关闭挡板风门或隔绝门连用。
       5、对系列中未包括的规格,根据用户需要,可进行特殊设计。
       6、调节挡板风门订货时应提出使用工况参数。
       ① 高工作压力(P)KPa。
       ② 高工作温度(t)℃。
       ③ 工作介质。
       ④  风门在管路中的用途及位置。
       7、供货范围:
       风门本体及电动执行机构。
       调节挡板风门规格系列用户可来电咨询。